logo
  • call us

    512.252.7555
  • send us mail

    info@becktv.com

BeckTV Design Solutions

    Integrating Media Solutions
Beck provides a wide range of design and consulting services. Because we’ve been involved in the planning of hundreds of facilities, we understand the unique desires of owners, architects, engineers and contractors. Beck can help you move through the design and planning stages of your project with a thorough, creative, and enjoyable process. Typically, BeckTV acts as the client’s or owner’s agent and works with the project team to insure that all of the elements necessary for creating a first-class broadcast plant are addressed.

Architectural Design photo 2
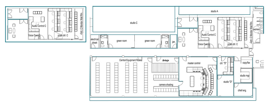
Console Plan
Architectural Design photo 4
Console with desk